Lausanne

Concours pour la construction de l’Ecole du Vélodrome – 3e prix

Contexte

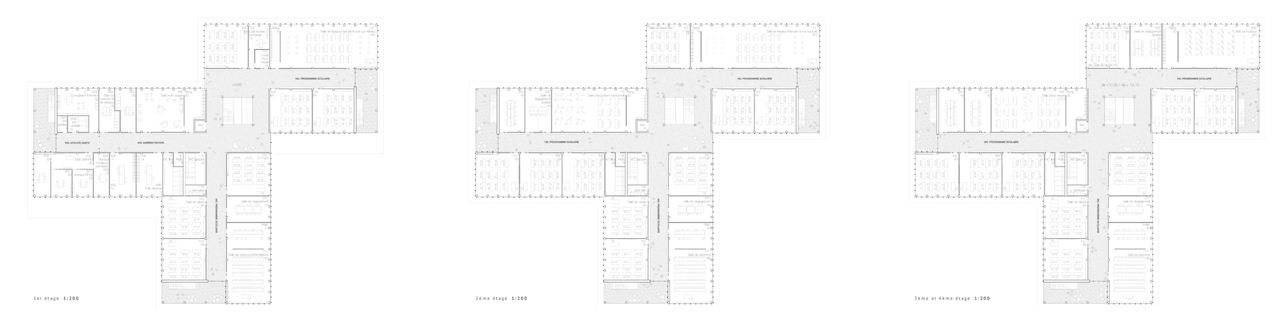
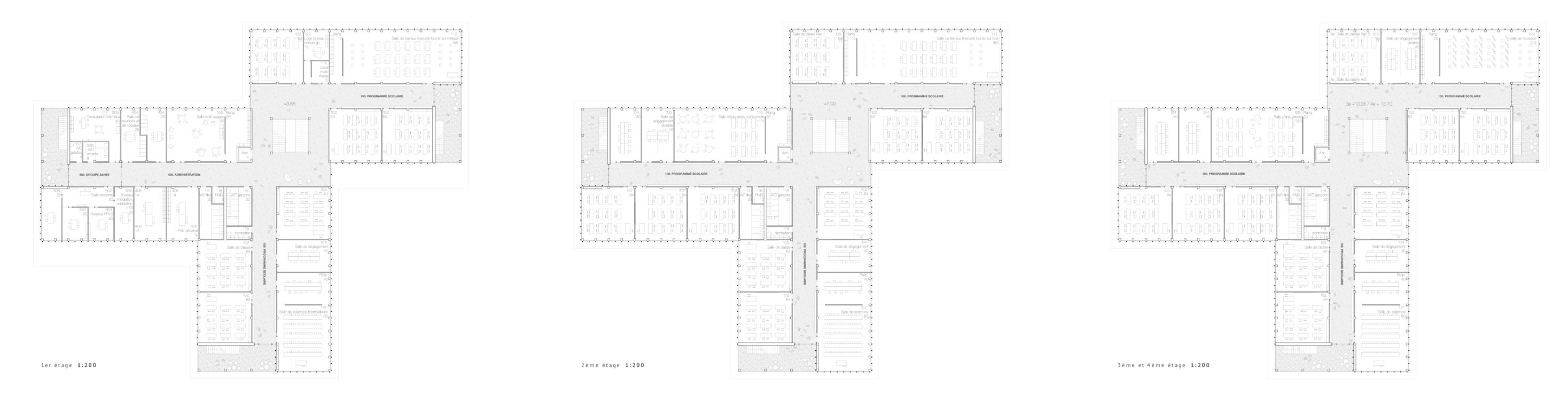
À partir d’une forme compacte et articulée, le projet s'implante dans le périmètre du concours comme un volume s’intégrant dans la continuité du parc du Vélodrome. La compacité du volume proposé en R+4 poptimise l’emprise au sol et libère de généreux espaces en pleine terre, propices au développement d’un écosystème riche et diversifié.

Le bâtiment occupe la zone centrale de la parcelle, tandis que les abords s’inscrivent dans la continuité des aménagements extérieurs du parc du Vélodrome. Sur la limite nord, les terrains de sport – couverts et extérieurs – s’articulent de manière à permettre un usage partagé entre les élèves et le public en dehors des horaires scolaires. Au sud de la parcelle, les «ailes» de la volumétrie dessinent des espaces plus protégés, formant deux zones de préaux distinctes, adaptées aux différents âges des élèves et intégrées au parc.

Le projet exploite pleinement la topographie du site en tirant parti du dénivelé entre la partie basse de l’Avenue du Vélodrome et le plateau supérieur. La salle de gym se positionne comme un volume semi-enterré en face du parc du Vélodrome. Cette proximité favorise l’utilisation partagée de cette salle entre l’école et les usagers externes. Un parvis d’accès extérieur pour les spectateurs est défini au niveau +591,5 m. Au-dessus de la salle, au niveau +596 m, se trouve la piste de sport synthétique, semblable à une place élevée offrant une vue panoramique sur le parc. A ce même niveau, qui correspond à la partie haute de l’Avenue du Vélodrome et du parc, se trouve l’école, permettant ainsi les accès de plain-pied depuis la « Place du Loup ».

Images

Caractérisitques

Maître d'ouvrage
Ville de Lausanne
Lieu
Plaines-du-Loup, Lausanne
Programme
Construction d'un groupe scolaire et d'une salle de gymnastique
Prix
3e prix

Dates

Concours
mars à juin 2024

Mandataires

Architecte
architech sa
Ingénieur civil
EDMS SA