Plan-les-Ouates

Concours de projets à 2 degrés Le Rolliet pièce G2 – finaliste

Descriptif

Vie communautaire & Végétation
Conserver une bonne qualité de vie en milieu bâti et créer des conditions favorables au bien vivre ensemble constituent les objectifs principaux du projet ROBINIA. Pour créer un bâtiment accueillant, à la qualité de vie élevée et à l’identité propre, divers facteurs doivent s’y combiner : espaces ouverts adaptés à tous, stratégie architecturale et spatiale facilitant une utilisation mixte, offrant des possibilités de retrait ou d’échanges sociaux, et s’adaptant aisément à de nouvelles conditions.

Le rez-de-chaussée et la terrasse sont les lieux de vie communautaire par excellence. Par sa forme il invite à circuler, à traverser le bâtiment et à découvrir un espace riche d’activités : une grande salle commune, un atelier de bricolage et une buanderie commune. Chacun de ces locaux s’étend vers l’extérieur par une terrasse entourée de verdure. La végétation du rez-de-chaussée s’invite à son tour à l’intérieur du bâtiment en rendant l’expérience de cet espace riche et variée. Le socle du bâtiment côté cour présente un aspect accueillant et frais grâce à la présence des jardins de pluie. Un mélange de plantes hygrophiles s’installe aux pieds de la nouvelle construction en créant des endroits propices à la biodiversité.

La toiture terrasse accueille de multiples activités liées à la détente et au plantage : un solarium, des espaces de jeux, mais également des serres, des potagers, des biotopes, des espaces dédiés à la petite faune (hôtels à insectes, ruches, nichoirs, etc..). Les formes et la mixité de ces usages et activités favorisent le vivre ensemble et assurent l’animation de cet espace privilégié. Un ensemble de milieux naturels différents, la diversification des espèces et des substrats contribuent de manière importante à la protection active de la nature et des espèces. Les biotopes de toiture, les blocs de pierre, le bois mort ainsi que les herbes de prairies en constituent la base. Les abeilles sauvages et les autres insectes y trouvent rapidement leurs nourritures. De récentes discussions concernant le déclin des insectes informent sur l’impact de notre écosystème et sur l’appauvrissement de la diversité en nourriture des insectes. Un mélange de fleurs, de plantes et de graminées au lieu d’une végétation de sédums sur les toitures vertes offre une contribution positive à la nature. Jusqu’à 100 espèces de plantes différentes colonisent ces sites ; et les insectes, coléoptères ou oiseaux élisent volontiers domicile aux « étages supérieurs » verdoyants. Ces milieux naturels nécessitent un faible entretien et contribuent au développement du maillage vert et bleu : ils créent des continuités végétales au sein de la parcelle et entre parcelles

Dans le nouveau bâtiment, des bacs aux formes épurées sont installés au niveau des trois cages escaliers afin que des plantes grimpantes à croissance maitrisée s’installent progressivement sur un système de câbles en inox prévus à cet effet. En plus de celles- ci, la façade s’enrichit de plusieurs colonnes végétales supplémentaires qui vont du rez-de-chaussée jusqu’au toit. Le choix des espèces végétales est primordial. Les essences choisies doivent s’adapter aux différentes conditions d’ensoleillement et garantir un entretien réduit. Un mélange d’espèces caduques et persistantes est proposé afin que l’aspect du bâtiment change au fil des saisons. Elles contribuent de manière active au rafraichissement du bâtiment et fournissent des habitats supplémentaires pour la petite faune.

Typologies

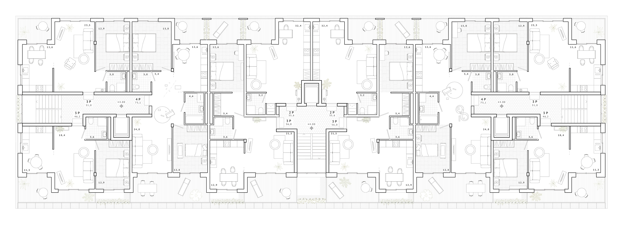
La composition des appartements est basée sur un jeu de décalage entre les différents espaces. Cette disposition engendre des vues diagonales depuis le centre de l’appartement et crée une succession d’espaces avec différentes affectations. À l’extérieur, les avancés de la façade permettent de définir la privacité des balcons, renforcée par les colonnes végétales situées sur la façades Ouest.

Dans cette configuration d’espaces décalés les uns par rapport aux autres et de vues diagonales, les typologies proposées sont très variées. De même façon, le projet valorise la continuité de ces espaces, tout en rendant possible la séparation par des portes coulissantes. Les tailles des locaux étant assez similaires, les affectations de ceux-ci pourraient varier dans le temps. Les accès se faisant depuis le cœur du logement, toutes les pièces peuvent être distribuées depuis un même espace d’accueil.

Partant de la continuité des espaces de jour, la zone centrale devient un lieu polyvalent pour l’appartement. Étant un lieu depuis lequel toutes les pièces sont accessibles, le projet offre à celui-ci une taille et une entité suffisamment importante pour être un espace où différentes activités sont possibles : salle à manger, espace de jeu pour les enfants, sport à la maison, zone de travail, etc. Il devient ainsi un espace complémentaire qui offre la possibilité d’agrandir la zone de vie principale des appartements (séjour et cuisine ) selon les besoins de chaque moment.

Extrait des planches de concours

Caractéristiques

Maître d'ouvrage
Fondation HBM Emma Kammacher
Lieu
Plan-les-Ouates - Le Rolliet pièce G2
Programme
Immeuble de logements de 50 appartements, locaux communs, ateliers et aménagements extérieurs
Prix
Finaliste

Dates

Concours
mars 2021 à juillet 2021

Mandataires

Architecte
architech sa
Architecte paysagiste
Arrabal Sàrl