Situé au cœur de la commune de Veyrier, le projet « Pile ou Face » est l'occasion de transformer la parcelle pour qu’elle devienne un lieu centralisateur.
La densification à laquelle le territoire est exposé actuellement engendre un projet à caractère multifonctionnel et multigénérationnel. Cette situation introduit une nouvelle échelle au contexte communal, avec la construction d'un programme multiple comme les activités, les locaux communaux et d'hébergement. Les espaces devront suggérer différentes atmosphères et caractères pour capter les sensibilités des piétons et des utilisateurs, en mettant en valeur les éléments architecturaux et végétaux existants.
Contexte
Les bâtiments actuels de la Villa Prins et d’équipements communaux sont des témoins de la cohérence architecturale du centre du Village de Veyrier. Le projet propose un espace de transition entre les langages architecturaux historiques (en zone 4B protégée) et des nouveaux édifices construits à proximité. De même, le dialogue entre la place des bâtiments communaux récents situés en face et la nouvelle place créée renforcera les synergies entre les programmes et la continuité urbaine sur la route de Veyrier. Le résultat architectural se base en une réponse rationnelle qui combine des transparences et des opacités en façade ainsi que des solutions de toitures adaptées aux bâtiments historiques et récents – toiture à double pente pour l’annexe du bâtiment communal et toiture plate pour les logements d’étudiants.
Transformation
Le principe de transformation du bâtiment communal réside dans le fait de pouvoir doter ces espaces d’une capacité d’adaptation dans le futur. À cette fin, le projet « Pile ou Face » s’inspire de l’essence propre des bâtiments ruraux, en créant des surfaces ouvertes et multifonctionnelles. Les espaces se situent autour d’une nouvelle cage de circulations verticales, libérant complètement le volume du bâtiment existant et produisant une grande surface devant le parc. Ces deux grands espaces pourront donc un jour se transformer facilement pour accueillir d’autres programmes. En face, se situe le programme des logements d’étudiants qui proposent, à partir de typologies traversantes, un lien fort entre les espaces intérieurs et extérieurs. Ainsi, une coursive définit à la fois une surface ouverte de circulation et de détente où les habitants pourront créer un espace de partage en vis-à-vis avec l’espace urbain. De la même façon que la place sera dynamisée par les surfaces commerciales du rez- de-chaussée, l’espace commun situé au 2e étage permettra de créer une « place en toiture » pour les habitants.
Entre ces deux « pièces » urbaines, les arbres préservés marquent la contrainte majeure au niveau technique. Pour limiter l’incidence avec l’espace de vie des arbres, les nouvelles fondations seront réalisées à l’emplacement des murs du sous-sol existant. À l’intérieur, un système porteur léger avec une solution mixte en bois et béton construira les volumes du programme.

Vue générale

Vue depuis les logements étudiants

Vue intérieure

Plan masse

Contexte

Flux

Paysage & Climat

Transformation

Sous-sol du bâtiment abritant les locaux associatifs et administratifs

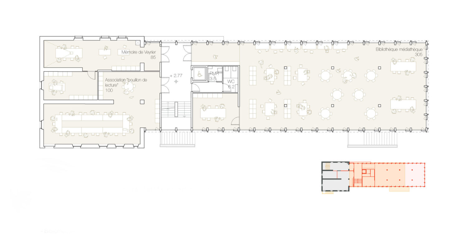
Rez du bâtiment abritant les locaux associatifs et administratifs

1er étage du bâtiment abritant les locaux associatifs et administratifs

2e étage du bâtiment abritant les locaux associatifs et administratifs

Sous-sol du bâtiment de logements pour étudiants

Rez du bâtiment de logements pour étudiants

1er étage du bâtiment de logements pour étudiants

2e étage du bâtiment de logements pour étudiants

Typologie 1 - logements pour étudiants

Typologie 2 - logements pour étudiants

Typologie 3 - logements pour étudiants

Coupe

Coupe longitudinale sur la salle communale

Coupe longitudinale sur les logements étudiants

Elévation sur l'ensemble

Elévation sur la salle communale

Elévation sur les logements d'étudiants